Espace propriétaire
fr

Votre recherche

Gigean (34770)

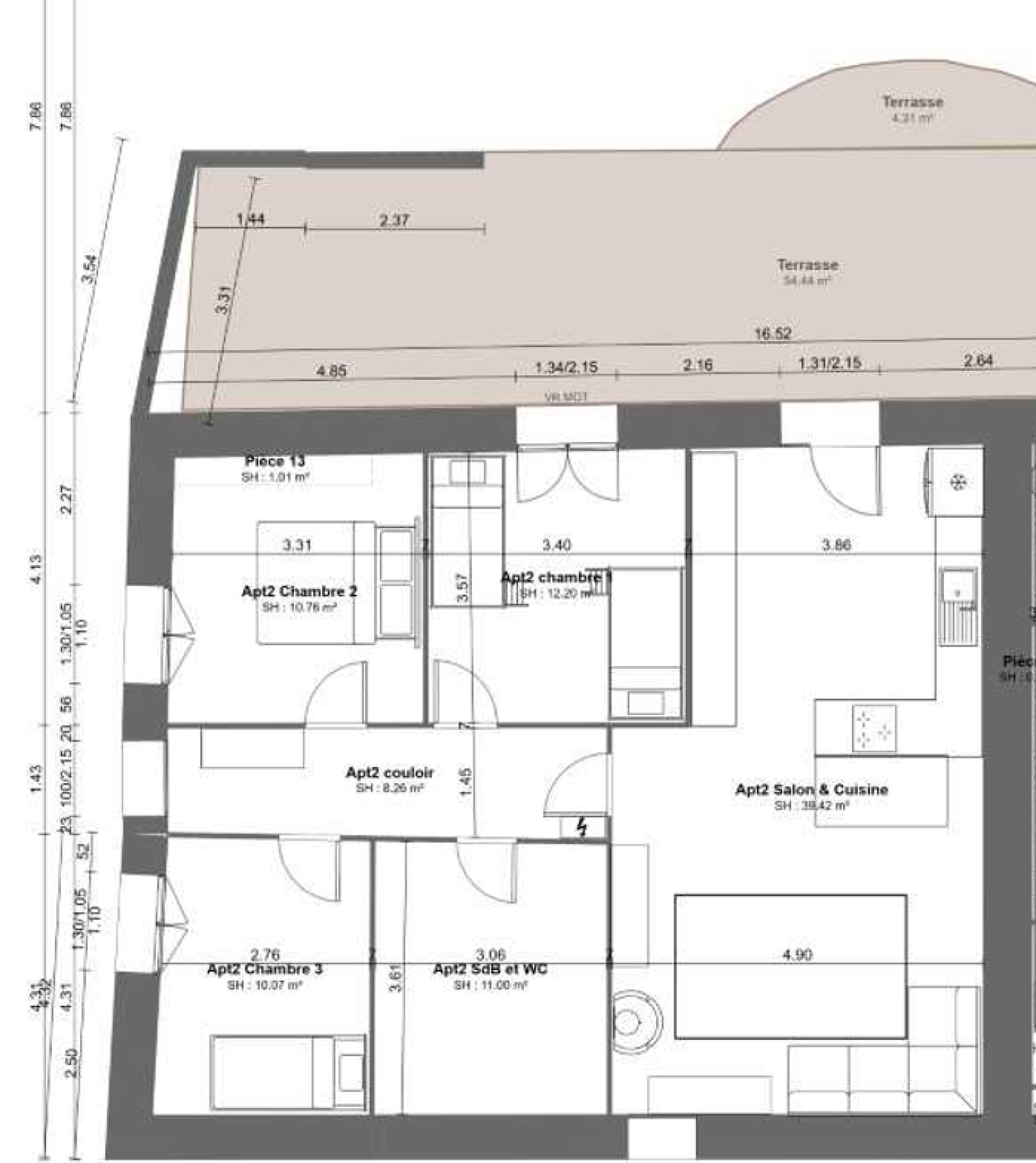
4 pièces - 92 m²

Appartement de 92 m² avec terrasse, garage, cave

200 000 €
Ref : LVAP10000361
Découvrir le bien

Situé au premier et dernier étage d’une maison divisée en 3 lots, cet appartement de 92 m² séduit par sa luminosité, son calme et son potentiel d’aménagement. Les atouts du bien : Spacieuse pièce de vie de 40 m², chaleureuse et baignée de lumière Accès direct sur une terrasse de 30 m², parfaite pour profiter des beaux jours Trois chambres confortables, idéales pour une vie de famille Grande salle de bain avec douche Offrant un espace supplémentaire à aménager selon vos besoins Annexes et stationnement : Garage fermé de 23 m² Place de stationnement privative Cave privative Emplacement privilégié, en plein cœur de Gigean, à deux pas des commerces, des écoles et des accès autoroutiers.

Des travaux seront nécessaires pour que l’appartement corresponde pleinement aux plans.

TRAD_ZEPHYR_Caracteristique TRAD_ZEPHYR_Valeurs
Code postal 34770
Surface loi Carrez (m²) 92 m²
Nombre de chambre(s) 2
Nombre de pièces 4
Etage 1
Nombre de niveaux 1
Ascenseur NON
TRAD_ZEPHYR_Caracteristique TRAD_ZEPHYR_Valeurs
Nb de salle de bains 1
Cuisine Américaine
Type de cuisine Equipée
Terrasse OUI
Nombre de garage 1
Cave OUI
Surface cave (m²) 5
Exposition Nord
Année de construction 1900
TRAD_ZEPHYR_Caracteristique TRAD_ZEPHYR_Valeurs
Copropriété OUI
plan de sauvegarde NON
statut du syndic pas de procédure en cours
TRAD_ZEPHYR_Caracteristique TRAD_ZEPHYR_Valeurs
Prix de vente honoraires TTC inclus 200 000 €
Charges 20 €
Taxe foncière annuelle 1 200 €
DPE GES
  • Commerces et santé
  • Loisirs
  • Ecoles
  • Transports
  • Pratique
Contacter pour ce bien
L'agence
Téléphone 06 81 23 07 94
Adresse
1025K Rue Henri Becquerel BAT 9 34000 Montpellier

* Champ obligatoire

Les informations recueillies sur ce formulaire sont enregistrées dans un fichier informatisé par La Boite Immo agissant comme Sous-traitant du traitement pour la gestion de la clientèle/prospects de l'Agence / du Réseau qui reste Responsable du Traitement de vos Données personnelles. La base légale du traitement repose sur l'intérêt légitime de l'Agence / du Réseau. Elles sont conservées jusqu'à demande de suppression et sont destinées à l'Agence / au Réseau. Conformément à la loi « informatique et libertés », vous disposez des droits d’accès, de rectification, d’effacement, d’opposition, de limitation et de portabilité de vos données. Vous pouvez retirer votre consentement à tout moment en contactant directement l’Agence / Le Réseau. Consultez le site https://cnil.fr/fr pour plus d’informations sur vos droits. Si vous estimez, après avoir contacté l'Agence / le Réseau, que vos droits « Informatique et Libertés » ne sont pas respectés, vous pouvez adresser une réclamation à la CNIL. Nous vous informons de l’existence de la liste d'opposition au démarchage téléphonique « Bloctel », sur laquelle vous pouvez vous inscrire ici : https://www.bloctel.gouv.fr Dans le cadre de la protection des Données personnelles, nous vous invitons à ne pas inscrire de Données sensibles dans le champ de saisie libre.
Ce site est protégé par reCAPTCHA, les Politiques de Confidentialité et les Conditions d'Utilisation de Google s'appliquent.

Découvrir nos outils